WOHNHAUSANLAGE GÜSSING / ALTE BÜRGERSCHULE / PLÄNE

Lageplan
guessing_alte_buergerschule_studie_lageplan

Grundriss Untergeschoss
guessing_alte_buergerschule_studie_grdr_ug

Grundriss Erdgeschoss
guessing_alte_buergerschule_studie_grdr_eg

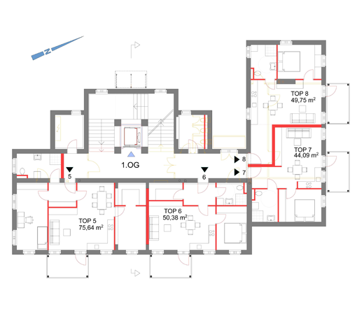
Grundriss 1. Obergeschoss
guessing_alte_buergerschule_studie_grdr_1_og

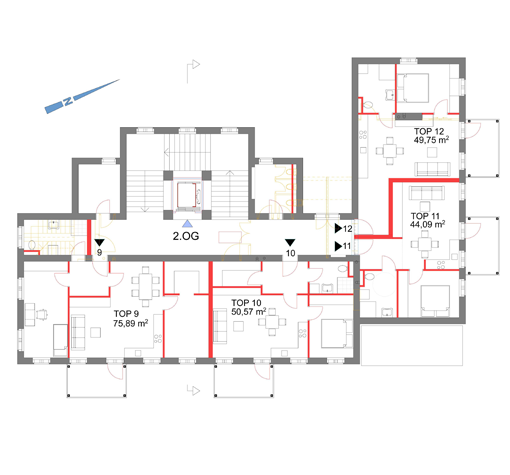
Grundriss 2. Obergeschoss
guessing_alte_buergerschule_studie_grdr_2_og

Schnitt
guessing_alte_buergerschule_studie_schnitt